西安[切换]
  • 装修热线:18191004446
入驻巧装家

高品质互联网家装平台

老房研究院

老房装修文化艺术节中国老房装修标准指南

已为4057位业主提供老房装修服务

免费预约 开工即省30%
  • 您的称呼
  • 手机号码
  • 所在小区
预约热线:18191004446
为了你的利益及我们的口碑,你的隐私将被严格保密。
x 点击进入西安站>>
选择其他城市:

您的位置: 巧装家 > 设计案例 >

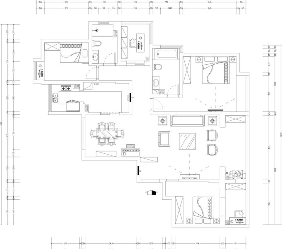
融侨城134平米简欧

融侨城134平米简欧

小区:
融侨城
户型:
复式LOFT
面积:
134.0平米
风格:
欧式
预算:
16.00万元
设计理念:
背景色为白色 藏青色为点缀色 地面菱形铺贴与正贴交互相错
分享到:
张智涛

张智涛编号:UZ_904

级别:

他承诺:
  • 所接的工地均经过国家级的标杠工程施工,平台监理全程严苛监工,15项验收标准,不合格砸掉重做
  • 所接的工地均经过国家级的标杠工程施工,平台监理全程严苛监工,15项验收标准,不合格砸掉重做
  • 从环保设计,环保材料,环保施工,环保检测四个方面要求,承诺环保不达标全额退款
  • 业主提交投诉,30分钟内受理、24小时内上门确认、48小时内协调解决

陕西西安

从业7年 / 陕西西安人 / 西安美术学院

  • 本月预约:8个
  • 成交记录 :75条
  • 作品数:73个
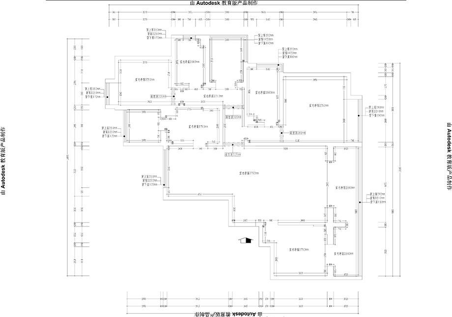
效果图 施工图
-融侨城134平米简欧
-融侨城134平米简欧
-融侨城134平米简欧
-融侨城134平米简欧
-融侨城134平米简欧
融侨城134平米简欧

融侨城134平米简欧

我家按此装修 需要多少钱呢

设计案例点评

加载更多