西安[切换]
  • 装修热线:18191004446
入驻巧装家

高品质互联网家装平台

老房研究院

老房装修文化艺术节中国老房装修标准指南

已为4057位业主提供老房装修服务

免费预约 开工即省30%
  • 您的称呼
  • 手机号码
  • 所在小区
预约热线:18191004446
为了你的利益及我们的口碑,你的隐私将被严格保密。
x 点击进入西安站>>
选择其他城市:

您的位置: 巧装家 > 设计案例 >

兰亭坊小区147平美式乡村风格设计方案

兰亭坊小区147平美式乡村风格设计方案

小区:
兰亭坊小区
户型:
复式LOFT
面积:
147.0平米
风格:
新古典
预算:
5.50万元
设计理念:
美式乡村风格摒弃了繁琐和奢华,并将不同风格中的优秀元素汇集融合,以舒适机能为导向,强调"回归自然",使这种风格变得更加轻松、舒适。美式乡村风格色彩以自然色调绿色、土褐色为主,壁纸多为纯纸浆质地;家具颜色仿旧漆,式样厚重;设计中多有地中海样式的拱。
分享到:
姜博丽

姜博丽编号:UZ_790

级别:

他承诺:
  • 所接的工地均经过国家级的标杠工程施工,平台监理全程严苛监工,15项验收标准,不合格砸掉重做
  • 所接的工地均经过国家级的标杠工程施工,平台监理全程严苛监工,15项验收标准,不合格砸掉重做
  • 从环保设计,环保材料,环保施工,环保检测四个方面要求,承诺环保不达标全额退款
  • 业主提交投诉,30分钟内受理、24小时内上门确认、48小时内协调解决

陕西西安

从业10年 / 陕西西安人 / 西北大学

  • 本月预约:190个
  • 成交记录 :125条
  • 作品数:112个
效果图 施工图
客厅-兰亭坊小区147平美式乡村风格设计方案
客厅-兰亭坊小区147平美式乡村风格设计方案
局部-兰亭坊小区147平美式乡村风格设计方案
卧室-兰亭坊小区147平美式乡村风格设计方案
兰亭坊小区147平美式乡村风格设计方案

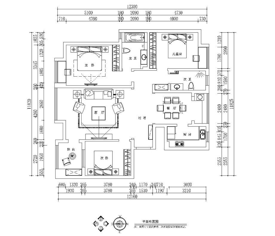
户型图

我家按此装修 需要多少钱呢

设计案例点评

加载更多