西安[切换]
  • 装修热线:18191004446
入驻巧装家

高品质互联网家装平台

老房研究院

老房装修文化艺术节中国老房装修标准指南

已为4057位业主提供老房装修服务

免费预约 开工即省30%
  • 您的称呼
  • 手机号码
  • 所在小区
预约热线:18191004446
为了你的利益及我们的口碑,你的隐私将被严格保密。
x 点击进入西安站>>
选择其他城市:

您的位置: 巧装家 > 设计案例 >

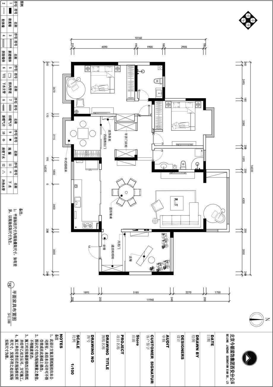
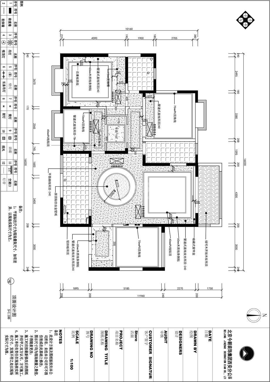
亮丽家园140平米新中式设计方案

亮丽家园140平米新中式设计方案

小区:
曲江亮丽家园
户型:
复式LOFT
面积:
140.0平米
风格:
中式
预算:
7.80万元
设计理念:
对于刚退休的业主夫妇,四居室的房子做成卧室实在浪费,在了解业主平时注重生活品质,古筝,品茶,瑜伽样样精通。在跟业主沟通后,对格局做了合理的改造。完成了功能空间的配置,扩大了视觉空间感,增加了业主对储物的需求,同时隐藏了两个配电箱。简洁明快的新中式风格,细致入微的设计细节,无不体现了业主对晚年生活得态度。
分享到:
张特

张特编号:UZ_802

级别:

他承诺:
  • 所接的工地均经过国家级的标杠工程施工,平台监理全程严苛监工,15项验收标准,不合格砸掉重做
  • 所接的工地均经过国家级的标杠工程施工,平台监理全程严苛监工,15项验收标准,不合格砸掉重做
  • 从环保设计,环保材料,环保施工,环保检测四个方面要求,承诺环保不达标全额退款
  • 业主提交投诉,30分钟内受理、24小时内上门确认、48小时内协调解决

陕西

从业10年 / 陕西人 / 西北农林科技大学

  • 本月预约:0个
  • 成交记录 :59条
  • 作品数:86个
效果图 施工图
-亮丽家园140平米新中式设计方案
-亮丽家园140平米新中式设计方案
-亮丽家园140平米新中式设计方案
-亮丽家园140平米新中式设计方案
亮丽家园140平米新中式设计方案

亮丽家园140平米新中式设计方案

亮丽家园140平米新中式设计方案

亮丽家园140平米新中式设计方案

亮丽家园140平米新中式设计方案

亮丽家园140平米新中式设计方案

亮丽家园140平米新中式设计方案

亮丽家园140平米新中式设计方案

我家按此装修 需要多少钱呢

设计案例点评

加载更多