西安[切换]
  • 装修热线:18191004446
入驻巧装家

高品质互联网家装平台

老房研究院

老房装修文化艺术节中国老房装修标准指南

已为4057位业主提供老房装修服务

免费预约 开工即省30%
  • 您的称呼
  • 手机号码
  • 所在小区
预约热线:18191004446
为了你的利益及我们的口碑,你的隐私将被严格保密。
x 点击进入西安站>>
选择其他城市:

您的位置: 巧装家 > 设计案例 >

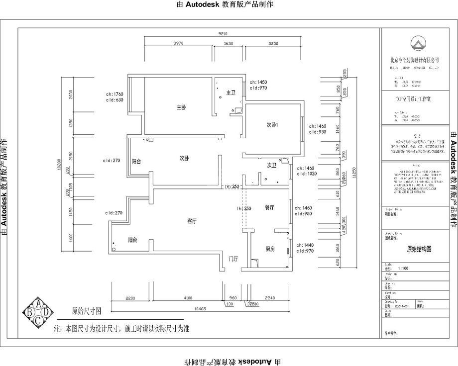
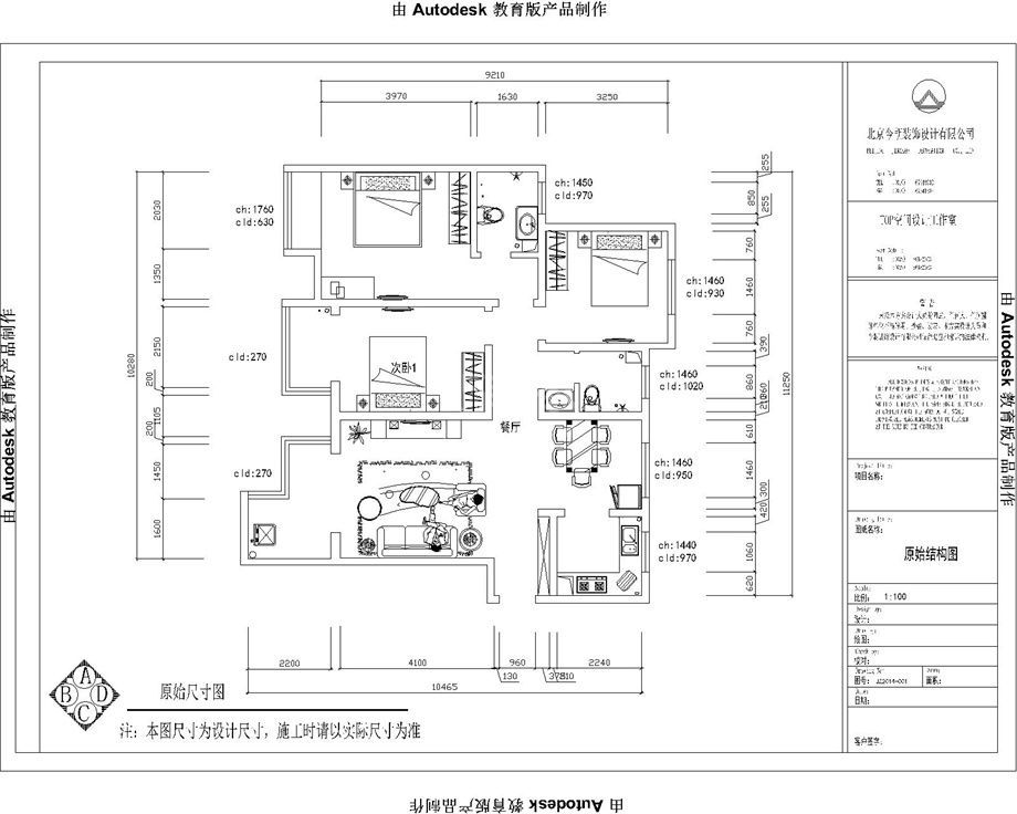
明威橡树湾/140平/欧式

明威橡树湾/140平/欧式

小区:
明威橡树湾小区
户型:
复式LOFT
面积:
140.0平米
风格:
欧式
预算:
8.90万元
设计理念:
业主夫妻是对年轻人,对于风格偏向现代感强的,饰美观性要求强。经过充分的考虑和协商我们最终将风格定位为欧式,本案是个平层。本案将各个空间的功能最大化,本人即想满足业主的要求又想给业主一种享受生活让家给自己带来归属感和踏实感的感觉。从地砖的拼花和顶面的造型都取营造一种欧式的线条及层次感,对颜色的选择上主要采取暖色,即增加光线得柔度又增加豪华感,主卧的卫生间本人将其墙体换成玻璃制,从而可以使得卧室更加宽敞的感官效果更加增加卧室的亮度和采光且更好的演绎出欧式的韵味。
分享到:
赵革继

赵革继编号:UZ_2561

级别:

他承诺:
  • 所接的工地均经过国家级的标杠工程施工,平台监理全程严苛监工,15项验收标准,不合格砸掉重做
  • 所接的工地均经过国家级的标杠工程施工,平台监理全程严苛监工,15项验收标准,不合格砸掉重做
  • 从环保设计,环保材料,环保施工,环保检测四个方面要求,承诺环保不达标全额退款
  • 业主提交投诉,30分钟内受理、24小时内上门确认、48小时内协调解决

陕西西安

从业4年 / 陕西西安人 / 西安凯翔室内设计学校

  • 本月预约:146个
  • 成交记录 :25条
  • 作品数:76个
效果图 施工图
-明威橡树湾/140平/欧式
-明威橡树湾/140平/欧式
-明威橡树湾/140平/欧式
-明威橡树湾/140平/欧式
-明威橡树湾/140平/欧式
-明威橡树湾/140平/欧式
-明威橡树湾/140平/欧式
-明威橡树湾/140平/欧式
明威橡树湾/140平/欧式

明威橡树湾/140平/欧式

我家按此装修 需要多少钱呢

设计案例点评

加载更多