西安[切换]
  • 装修热线:18191004446
入驻巧装家

高品质互联网家装平台

老房研究院

老房装修文化艺术节中国老房装修标准指南

已为4057位业主提供老房装修服务

免费预约 开工即省30%
  • 您的称呼
  • 手机号码
  • 所在小区
预约热线:18191004446
为了你的利益及我们的口碑,你的隐私将被严格保密。
x 点击进入西安站>>
选择其他城市:

您的位置: 巧装家 > 设计案例 >

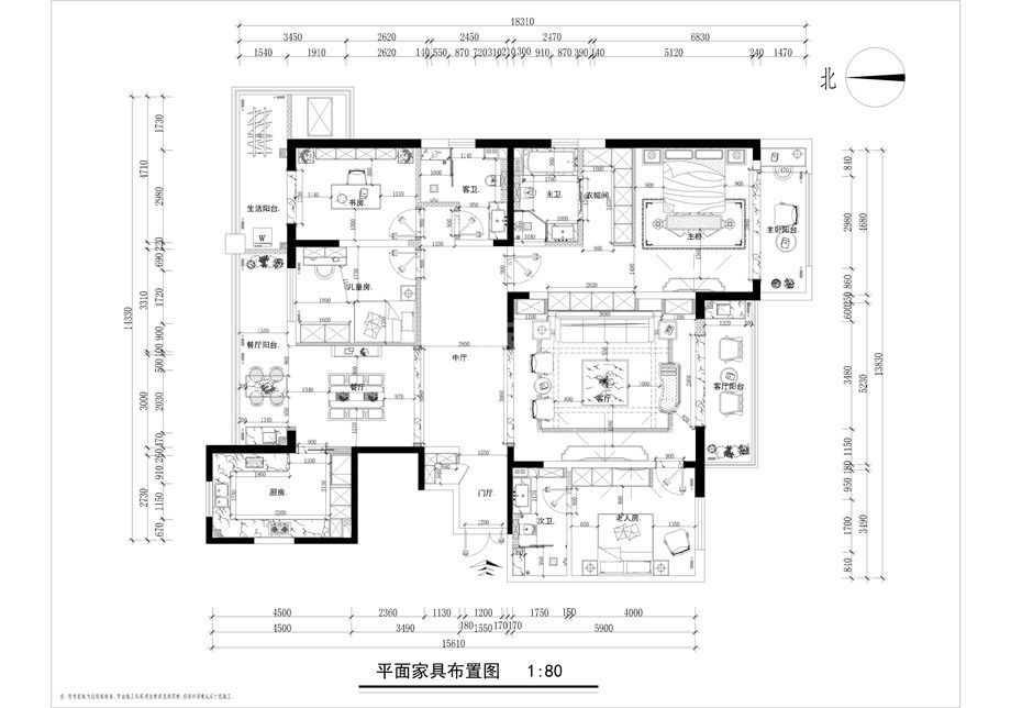
曲江公馆和园/260平/新古典

曲江公馆和园/260平/新古典

小区:
曲江公馆
户型:
复式LOFT
面积:
260.0平米
风格:
新中式
预算:
11.00万元
设计理念:
根据业主的要求最终将设计风格定位与-新古典,既有古典风格的奢华,又有现代风格的时尚,使用护墙板点缀空间,让整个房间充满现代感 ,区域和区域之间,都呈现出一种井然有序的自然生活状态。温情和浪漫,不同装饰物穿插之间,局部使用镜子反射增加空间感也体现了奢华的感觉。 
分享到:
赵革继

赵革继编号:UZ_2561

级别:

他承诺:
  • 所接的工地均经过国家级的标杠工程施工,平台监理全程严苛监工,15项验收标准,不合格砸掉重做
  • 所接的工地均经过国家级的标杠工程施工,平台监理全程严苛监工,15项验收标准,不合格砸掉重做
  • 从环保设计,环保材料,环保施工,环保检测四个方面要求,承诺环保不达标全额退款
  • 业主提交投诉,30分钟内受理、24小时内上门确认、48小时内协调解决

陕西西安

从业4年 / 陕西西安人 / 西安凯翔室内设计学校

  • 本月预约:146个
  • 成交记录 :25条
  • 作品数:76个
效果图 施工图
-曲江公馆和园/260平/新古典
-曲江公馆和园/260平/新古典
-曲江公馆和园/260平/新古典
-曲江公馆和园/260平/新古典
-曲江公馆和园/260平/新古典
-曲江公馆和园/260平/新古典
-曲江公馆和园/260平/新古典
-曲江公馆和园/260平/新古典
曲江公馆和园/260平/新古典

曲江公馆和园/260平/新古典

我家按此装修 需要多少钱呢

设计案例点评

加载更多