西安[切换]
  • 装修热线:18191004446
入驻巧装家

高品质互联网家装平台

老房研究院

老房装修文化艺术节中国老房装修标准指南

已为4057位业主提供老房装修服务

免费预约 开工即省30%
  • 您的称呼
  • 手机号码
  • 所在小区
预约热线:18191004446
为了你的利益及我们的口碑,你的隐私将被严格保密。
x 点击进入西安站>>
选择其他城市:

您的位置: 巧装家 > 设计案例 >

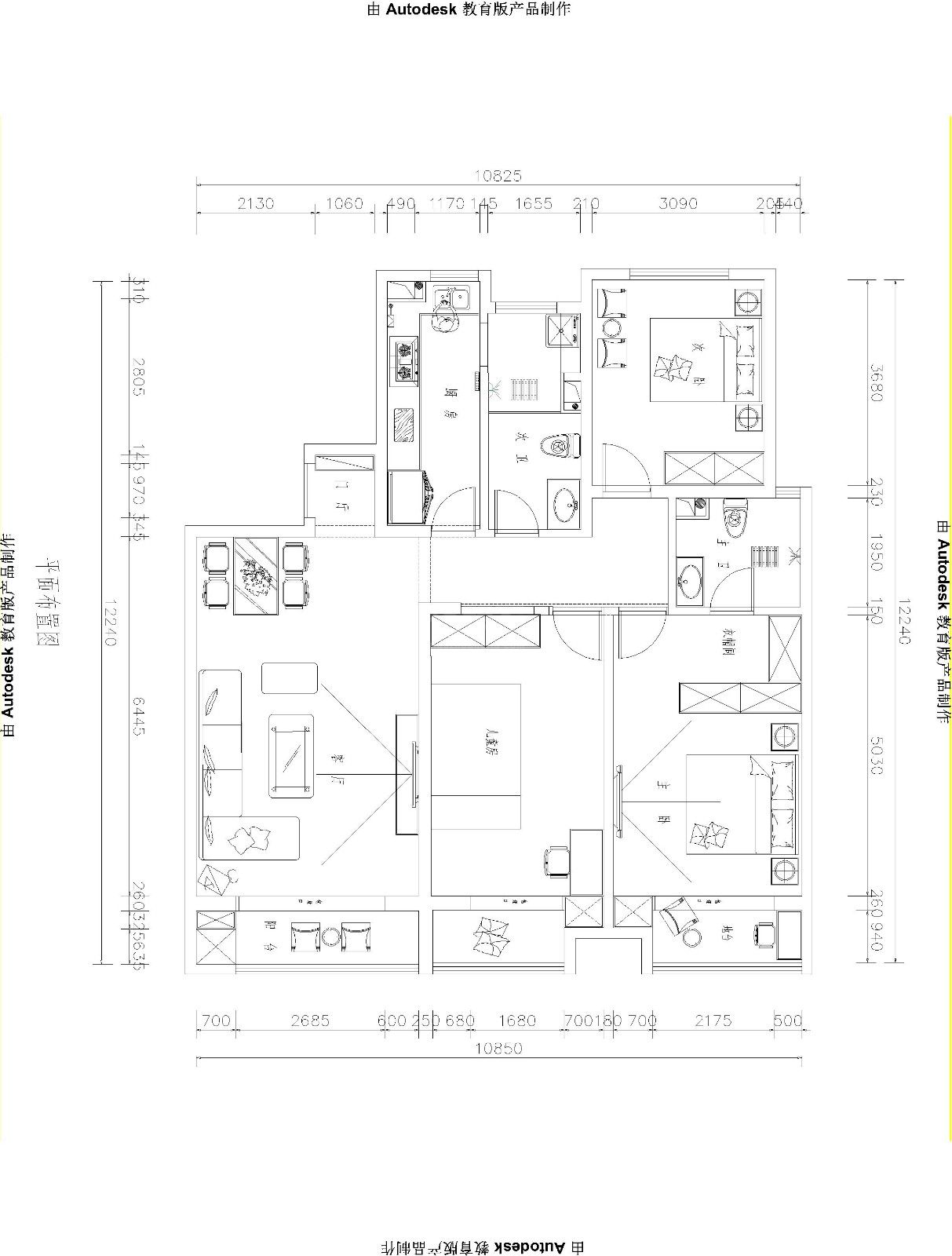
高山流水和城小区145平米现代简约风格

高山流水和城小区145平米现代简约风格

小区:
户型:
复式LOFT
面积:
145.0平米
风格:
现代简约
预算:
12.30万元
设计理念:
现代简约风格主要表现在空间开敞、内外通透,在空间平面设计中追求不受承重墙的限制自由。所以在设计现代简约的时候,很多时候都会考虑到墙面、地面、顶棚等的协调性。它是一种更高层次的创作境界。在考虑其设计的时候,它强调的是一种舒适与实用,比较注重于追求材料、技术、空间的表现深度与精确。
分享到:
姜博丽

姜博丽编号:UZ_790

级别:

他承诺:
  • 所接的工地均经过国家级的标杠工程施工,平台监理全程严苛监工,15项验收标准,不合格砸掉重做
  • 所接的工地均经过国家级的标杠工程施工,平台监理全程严苛监工,15项验收标准,不合格砸掉重做
  • 从环保设计,环保材料,环保施工,环保检测四个方面要求,承诺环保不达标全额退款
  • 业主提交投诉,30分钟内受理、24小时内上门确认、48小时内协调解决

陕西西安

从业10年 / 陕西西安人 / 西北大学

  • 本月预约:190个
  • 成交记录 :125条
  • 作品数:112个
效果图
-高山流水和城小区145平米现代简约风格
-高山流水和城小区145平米现代简约风格
-高山流水和城小区145平米现代简约风格
-高山流水和城小区145平米现代简约风格
-高山流水和城小区145平米现代简约风格
-高山流水和城小区145平米现代简约风格
-高山流水和城小区145平米现代简约风格
-高山流水和城小区145平米现代简约风格
-高山流水和城小区145平米现代简约风格
-高山流水和城小区145平米现代简约风格

我家按此装修 需要多少钱呢

设计案例点评

加载更多