已为4057位业主提供老房装修服务
您的位置: 巧装家 > 装修效果图 >
姓名: 朱凯
级别: 首席设计师
擅长风格: 现代简约 新中式
更多案例 预约设计
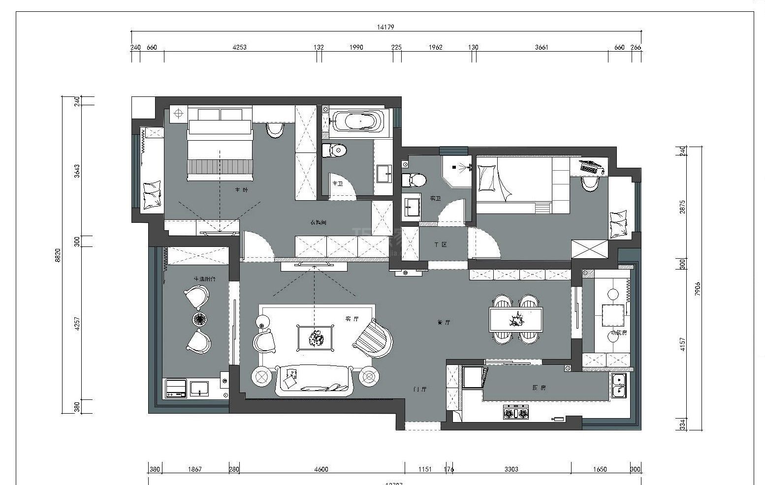
案例风格现代简约 案例户型跃层 案例面积95.0平方米
楼盘名称合能公馆小区 所在城市西安 案例造价8.00万元
服务店面九臻设计工作室 设计师朱凯 施工队长钱立新
曲江兰亭
面积:200㎡ 造价:8万
欧式风格 查看详情预约设计
大华世家
面积:190㎡ 造价:9万
新中式风格 查看详情预约设计
枫叶新都市
面积:140㎡ 造价:5.8万
暂无评论!
1室 2室 3室 4室 5室 1厅 2厅 3厅 4厅 5厅 1厨 2厨 3厨 4厨 5厨
1卫生间 2卫生间 3卫生间 4卫生间 5卫生间 1阳台 2阳台 3阳台 4阳台 5阳台
1室 2室 3室 4室 5室 1厅 2厅 3厅 4厅 5厅 1卫 2卫 3卫 4卫 5卫
新房整装 老房整装
开始计算
暂无评论!