西安[切换]
  • 装修热线:18191004446
入驻巧装家

高品质互联网家装平台

老房研究院

老房装修文化艺术节中国老房装修标准指南

已为4057位业主提供老房装修服务

免费预约 开工即省30%
  • 您的称呼
  • 手机号码
  • 所在小区
预约热线:18191004446
为了你的利益及我们的口碑,你的隐私将被严格保密。
x 点击进入西安站>>
选择其他城市:

您的位置: 巧装家 > 装修效果图 >

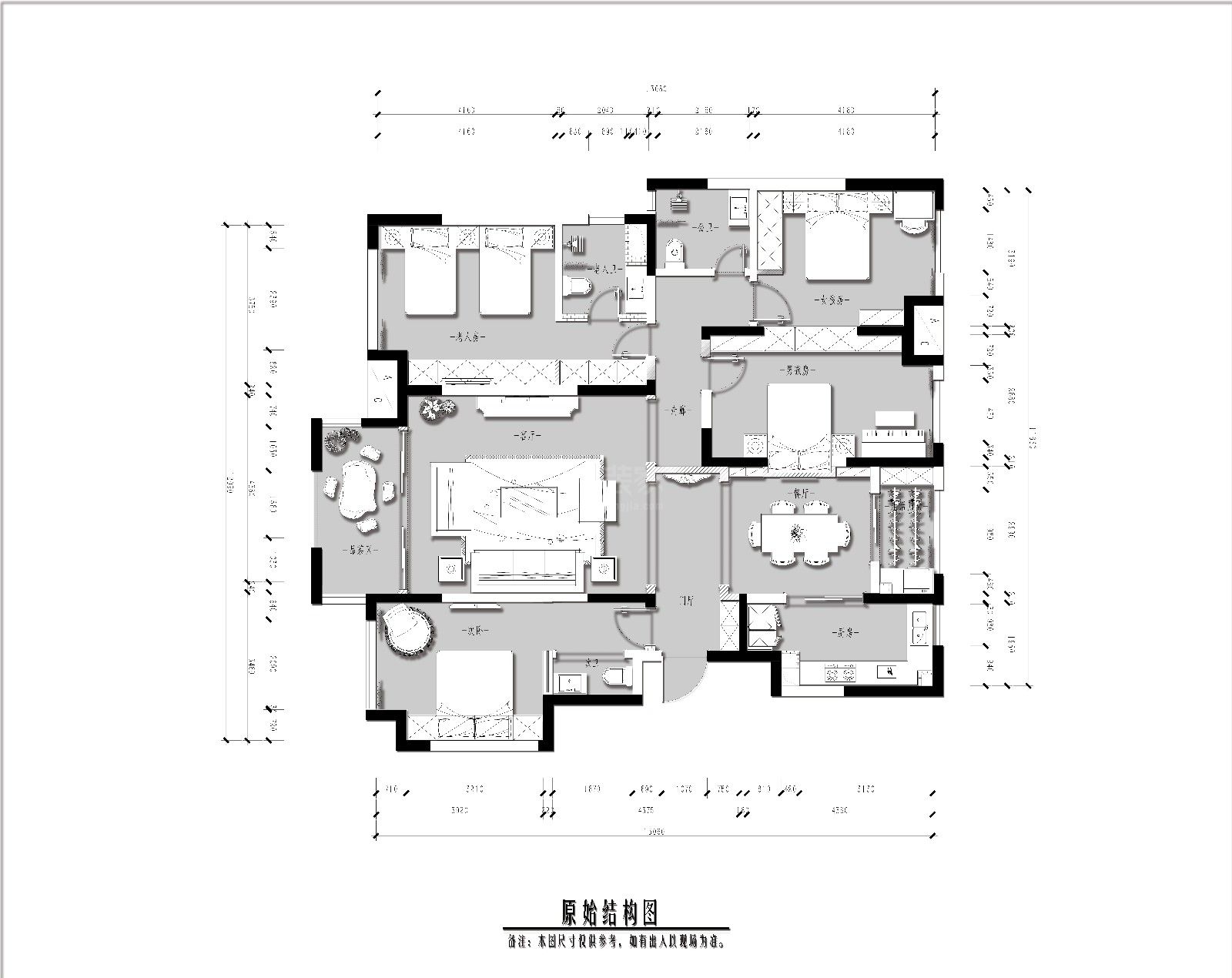
阳光城蔷薇溪谷

本案设计师简介

姓名: 彭书利

级别: 副主任设计师

擅长风格:  新中式 欧式

更多案例 预约设计

阳光城蔷薇溪谷 阳光城蔷薇溪谷 阳光城蔷薇溪谷 阳光城蔷薇溪谷 阳光城蔷薇溪谷 阳光城蔷薇溪谷 阳光城蔷薇溪谷 阳光城蔷薇溪谷 阳光城蔷薇溪谷 阳光城蔷薇溪谷 阳光城蔷薇溪谷 阳光城蔷薇溪谷

案例风格新中式 案例户型别墅 案例面积164.0平方米

楼盘名称阳光城蔷薇溪谷小区 所在城市西安 案例造价16.00万元

服务店面象外设计工作室 设计师彭书利 施工队长李安学

相关案例

评 论

暂无评论!